Interiors
before
BRIEF
Client concerns to be addressed in the redesign:
A lounge must be added
Fourteen desks in the open office space seem too close to the break room where noise and high foot-traffic distractions are prevalent
Ratio of private offices to meeting/conference rooms seems off
Recommend furniture selections
after
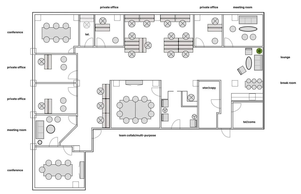
The redesign of Maiden Lane resolves client concerns by offering a balanced office environment with thoughtfully-zoned social and public spaces in open areas near the reception entrance. Focused and private work spaces are located further from the entrance which receives is less foot traffic and therefore reduces noise.
Eleven individual desks are located in the center open space away from the lounge and break room, with three additional workspaces in the back hallway, further protected from noise and distraction. The amount of private office spaces and meeting rooms has increased while maintaining two large conference rooms. The redesign also features a multipurpose collaboration room to provide flex space and to facilitate team projects.
LOUNGE CONCEPT
The newly-added lounge is located in the open office space, to the right of the reception entrance, for an inviting feel. Featuring soft-seating and plenty of table surfaces, this space can be used for work or conversation. The spread of noise is mitigated through sound-absorbing wood panels which span the back wall. The color and material scheme strike the perfect balance between bright and muted, as well as comfortablity and formality.
FURNITURE SELECTIONS
design philosophy
Designed with comfort and functionality top of mind, these bedroom designs prioritize grounding earth tones through honest wood materiality accented by chrome, white, and black for visual contrast. The use of clean lines and simple ergonomic furniture encourages comfort, presence, focus, and calmness. These spaces are dual-purposed, allowing for true rest as well as productive focus.
Before — Key Challenges Identified
Based on an evaluation of the existing space:
The beige-on-beige palette feels all-consuming and flat, lacking tonal depth or visual grounding.
Pops of blue and red look starkly out of place within the neutral environment, reading as unanchored accents rather than part of a cohesive scheme.
Oversized lamps disrupt the balance of the seating zone, visually compete with the furniture, and take up precious table space.
Tile flooring introduces a cold, uninviting feel, weakening the spatial warmth.
The rug is too small, causing the furniture to float rather than form a unified arrangement.
The placement of the sofa and chairs create tight circulation paths, making the room feel visually uninviting.
High-backed seating adds to the heaviness and contributes to a sense of enclosure rather than openness.
I believe that one’s physical and emotional experience in a space transforms the way that one lives and acts, and therefore, my design philosophy centers the human experience as its top priority. Aligning with modernist theory, I utilize honest materials, clean lines, and simple geometries to create spaces whose intentional design foster deep enjoyment.
Living Room Re-design
The primary goals of the redesign are to:
Introduce warmth, texture, and grounding through an earthy modern palette.
Establish a cohesive visual identity by replacing discordant accent colors with tones drawn from natural materials.
Improve circulation by widening walkways, repositioning seating, and considering lower-profile silhouettes.
Use an appropriately scaled rug to anchor the seating area, restore balance, and to soften the coldness of the tile by creating a more tactile, intentional environment
Swap overly large lamps for a floor lamp that complements the scale and flow of the room, and frees up coffee table space previously occupied by table lamps.
The redesign embodies the belief that every element of a space should serve an intention. By shifting the palette, adjusting proportions, and refining circulation, the room transitions from visually cold and cluttered to harmonious, grounded, and emotionally resonant. The emphasis on earthy tones and modern silhouettes supports a feeling of natural calm, while the improved layout creates a sense of ease and invitation. The space is no longer simply furnished — it becomes an environment shaped by thoughtful choices meant to support comfort, clarity, and daily ritual.
INteriors Moodboard
site design
Shown above are design iterations I created for a website.
I was provided with the three photos shown on the left as inspiration for the feel and color scheme of the site design. I pulled five main colors from these images to create the palette, then iterated to create the graphic designs at center and right. These images show my iterative method of designing, in which, at every stage, I incorporate feedback from the client or team in order to arrive at the final product.
GRAPHICS
Essays
The Common Design Principles of Piet Mondrian, Gerrit Rietveld, and Frank Lloyd Wright
published november 20, 2025
Meditations on Love and Loss: The Art Of Félix González-Torres
published june 11, 2025
Course Syllabus
Designed for Professor Kathryn Bunn-Marcuse, this syllabus outlines an undergraduate and graduate-level Art History class on Indigenous Women Artists of the Northwest Coast. Dr. Bunn-Marcuse and I gathered the most current research spanning subjects from weaving and carving to feminism and contemporary cultural issues. After sifting through all of the scholarship, I organized the class into a chronological progression of subjects and assigned readings for each week along with assignment ideas and discussion questions.
At each step of the process, maximizing the students’ learning was top of my mind. I asked myself: “what is the best way that this information could be presented?” For example, the Basketry lesson includes a visit to the Burke museum to see the basketry collection rather than assigning an outdated anthropological text.